
MIL-PRF-83536/10C
-
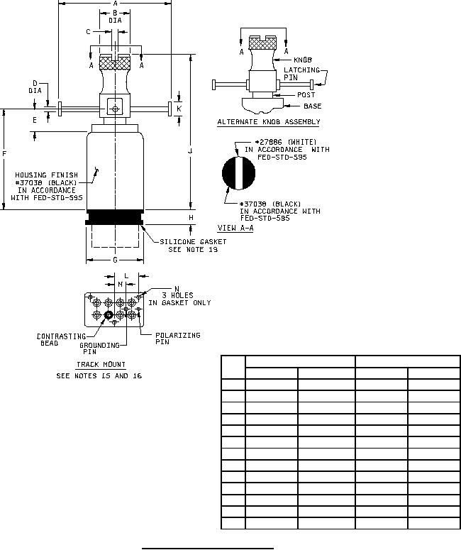
Inches
Millimeters
Ltr
Min
Max
Min
Max
A
1.210
1.290
30.73
32.77
B
.480
.520
12.19
13.21
C
.052
.072
1.32
0.39
D
.078
.080
1.98
2.03
E
.303
.323
7.70
8.20
F
1.373
1.453
34.87
36.91
G
---
1.025
---
26.03
H
.084
.104
2.13
2.64
J
---
2.010
---
51.05
K
.130
.150
3.30
3.81
L
.395
.405
10.03
10.29
M
.190
.210
4.83
5.33
N
.073
.083
1.85
2.11
FIGURE 1. Dimensions and configurations - Continued.
5
For Parts Inquires call Parts Hangar, Inc (727) 493-0744
© Copyright 2015 Integrated Publishing, Inc.
A Service Disabled Veteran Owned Small Business