
MIL-PRF-39016/44E
Qualification inspection:
Qualification inspection and sample size: See tables II and III.
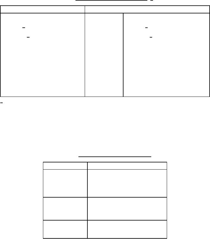
TABLE II. Qualification inspection and sample size. 1/
Single submission
Group submission
20 units plus 1 open unit for level L
M39016/44-028
20 units plus 1 open unit for level L
at C = 0 1/
at C = 0 1/
33 units plus 1 open unit for level
33 units plus 1 open unit for level
M at C = 0 1/
M at C = 0 1/
Qualification inspection as
Qualification inspection as
applicable.
applicable.
2 units qualification inspection table,
M39016/44-033
Q1, and shock, vibration,
acceleration, terminal strength, and
seal.
2 units, qualification inspection table,
M39016/44-008
Q1.
-017
-026
-044
1/ The number of units required for qualification testing shall be increased as required in Q5, table II, MIL-PRF-
39016, if the relay manufacturer elects to test the number of units permitting one or more failures. Prior to
performance of qualification inspection testing, the relay manufacturer shall preselect the sampling plan.
Qualification inspection (reduced testing): See table III.
If the relays produced for MIL-PRF-39016/44 are similar in construction and design, except for the coils, to
the relays produced for MIL-PRF-39016/6, then reduced testing for qualification of MIL-PRF-39016/44
relays may be performed concurrent with or subsequent to successful qualification of MIL-PRF-39016/6
relays.
TABLE III. Qualification inspection (reduced testing).
Dash number
Examination or test
M39016/44-037
4 units, qualification inspection table,
Q1.
1 unit each, life load test, electrical
post tests, seal, visual and mechanical
examination.
M39106/44-032
2 units, qualification inspection table,
Q1, shock, vibration, acceleration,
electrical post tests, seal, visual and
mechanical examination.
M39016/44-XXX
2 units of each remaining coil voltages,
qualification inspection table, Q1,
1 open unit, any coil voltage.
6
For Parts Inquires call Parts Hangar, Inc (727) 493-0744
© Copyright 2015 Integrated Publishing, Inc.
A Service Disabled Veteran Owned Small Business