
MIL-PRF-39016/8H
1/ Each relay possesses high level and low level capabilities. However, relays previously tested or used above
10 mA resistive at 6 V dc maximum or peak ac open circuits not recommended for subsequent use in low level
applications.
2/ WARNING: When latching relays are installed in equipment. The latch and reset coils should not be pulsed
simultaneously. Coils should not be pulsed with less than the nominal coil voltage and the pulse width should
be a minimum of three times the specified operate time of the relay. If these conditions are not followed, it is
possible for the relay to be in the magnetically neutral position.
3/ The suffix letter L, M, P, or R, to designate the applicable failure rate level, shall be added to the applicable
listed dash number. Failure rate level (percent per 10,000 cycles): L, 3.0; M, 1.0; P, 0.1; R, 0.01. Example:
013L - - - - - - - 030R.
4/ CAUTION: The use of any coil voltage less than the rated coil voltage will compromise the operation of the
relay.
5/ 1.500 leads are inactive for new design.
6/ Relays supplied with spreader mounting pads (-031 through -036) shall have the spreader mounting pad rigidly
attached.
QUALIFICATION INSPECTION:
Qualification inspection and sample size: See table II.
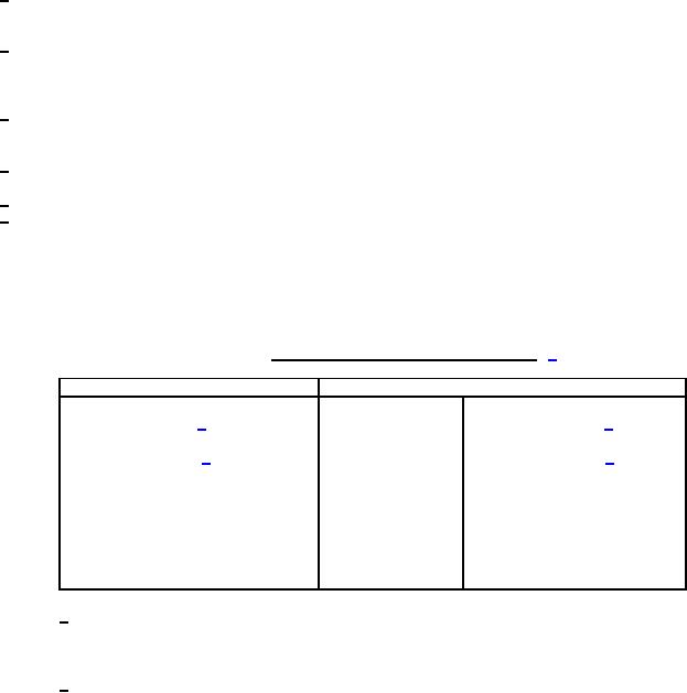
TABLE II. Qualification inspection and sample size. 1/
Single submission
Group submission
18 units plus 1 open unit for
M39016/8-030
18 units plus 1 open unit for
level L at C = 0 2/
level L at C = 0 2/
33 units plus 1 open unit for
33 units plus 1 open unit for
level M at C = 0 2/
level M at C = 0 2/
Qualification inspection as
Qualification inspection as
applicable
applicable
M39016/8-025
2 units each part number
Qualification inspection,
M39016/8-026
Q1.
M39016/8-027
M39016/8-028
M39016/8-029
1/ For retention of qualification or extension of qualification to lower failure rate levels, all life
to MIL-PRF-39016/8 data. Prior to performance of retention of qualification testing, the
relay manufacturer shall pre-select the sampling plan.
2/ The number of units required for qualification testing will be increased as required in Q4,
MIL-PRF-39016, if the relay manufacturer elects to test the number of units permitting one
or more failures. Prior to performance of qualification inspection, the relay manufacturer
shall pre-select the sampling plan.
8