
MIL-PRF-39016/27F
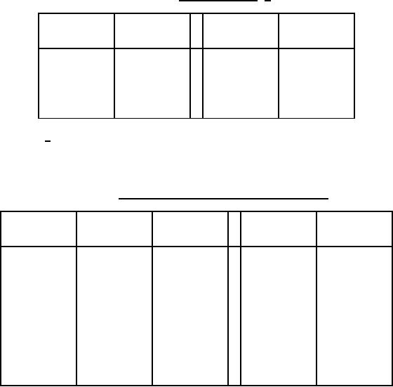
TABLE IV. Supersession data. 1/
Superseded
New part no.
Superseded
New part no.
M39016/27-
part no.
M39016/27-
part no.
M39016/27-
M39016/27-
001
013
007
019
002
014
008
020
003
015
009
021
004
016
010
022
005
017
011
023
006
018
012
024
1/ Dash numbers -013 through -024 are inactive for new design and are
for support of existing equipment designs only.
Cross reference for Government logistical support. See table V.
TABLE V. Cross reference for Government logistical support.
Superseded
New part
Support with
New part
Support with
part no.
number
part number
number
part number
M39016/27-
M39016/27-
M39016/-
M39016/27-
M39016/
001
013
27-013
025
27-025
002
014
27-014
026
28-026
003
015
28-015
027
28-027
004
016
28-016
028
28-028
005
017
28-017
029
28-029
006
018
28-018
030
28-030
007
019
27-025
031
27-031
008
020
27-026
032
27-032
009
021
28-027
033
28-033
010
022
28-028
034
28-034
011
023
28-029
035
28-035
012
024
28-030
036
28-036
Referenced documents. In addition to MIL-PRF-39016, this document references the following:
A-A-55485, /5
MIL-PRF-39016/28, /29, /30
MIL-STD-202
MIL-STD-750
MIL-STD-1285
Changes from previous issue: Marginal notations are not used in this revision to identify changes with respect to the
previous issue due to the extent of the changes.
9
For Parts Inquires call Parts Hangar, Inc (727) 493-0744
© Copyright 2015 Integrated Publishing, Inc.
A Service Disabled Veteran Owned Small Business