
INCH-POUND
MIL-DTL-83729/3C
02 April 2013
SUPERSEDING
MIL-DTL-83729/3B
14 June 2002
DETAIL SPECIFICATION SHEET
CHOPPERS, ELECTROMECHANICAL,
HERMETICALLY SEALED, SINGLE POLE, DOUBLE THROW,
BREAK BEFORE MAKE, BRACKET MOUNT
This specification is approved for use by all Departments
and Agencies of the Department of Defense.
The requirements for acquiring the product described herein shall consist
of this specification sheet and MIL-DTL-83729.
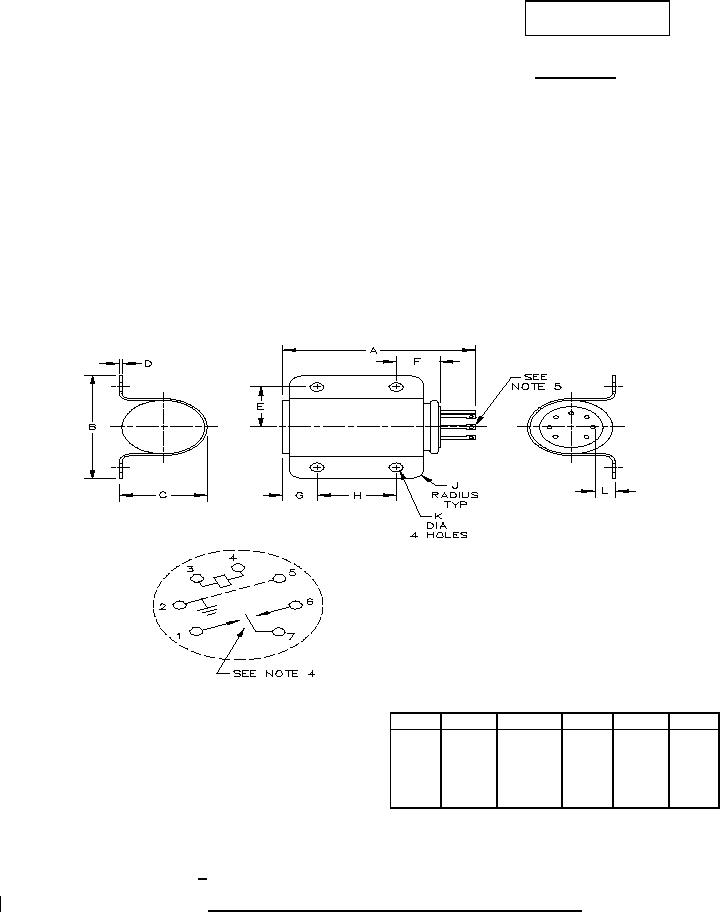
Letter
Inches
mm
Letter
Inches
mm
A
1.750
44.45
F
.562
14.27
B
1.438
36.53
G
.282
7.16
C
.800
20.32
H
.719
18.26
NOTES:
D
.025
.64
J
.125
3.18
1. Dimensions are in inches.
E
.562
14.27
K
.125
3.18
2. Metric equivalents are given for general information only.
3. Unless otherwise specified, tolerance is ± .005 (.13 mm).
4. When the coil is de-energized the center reed may be in any of 3 positions.
5. Pierced pin .043 (1.09 mm) diameter hole typical pin location to match standard 7 pin miniature tube socket.
6. Letter G has a tolerance of + .015 (.38 mm).
FIGURE 1. Outline drawing, terminal arrangement and schematic diagram.
AMSC N/A
FSC 5945